︎
Oscar Linder
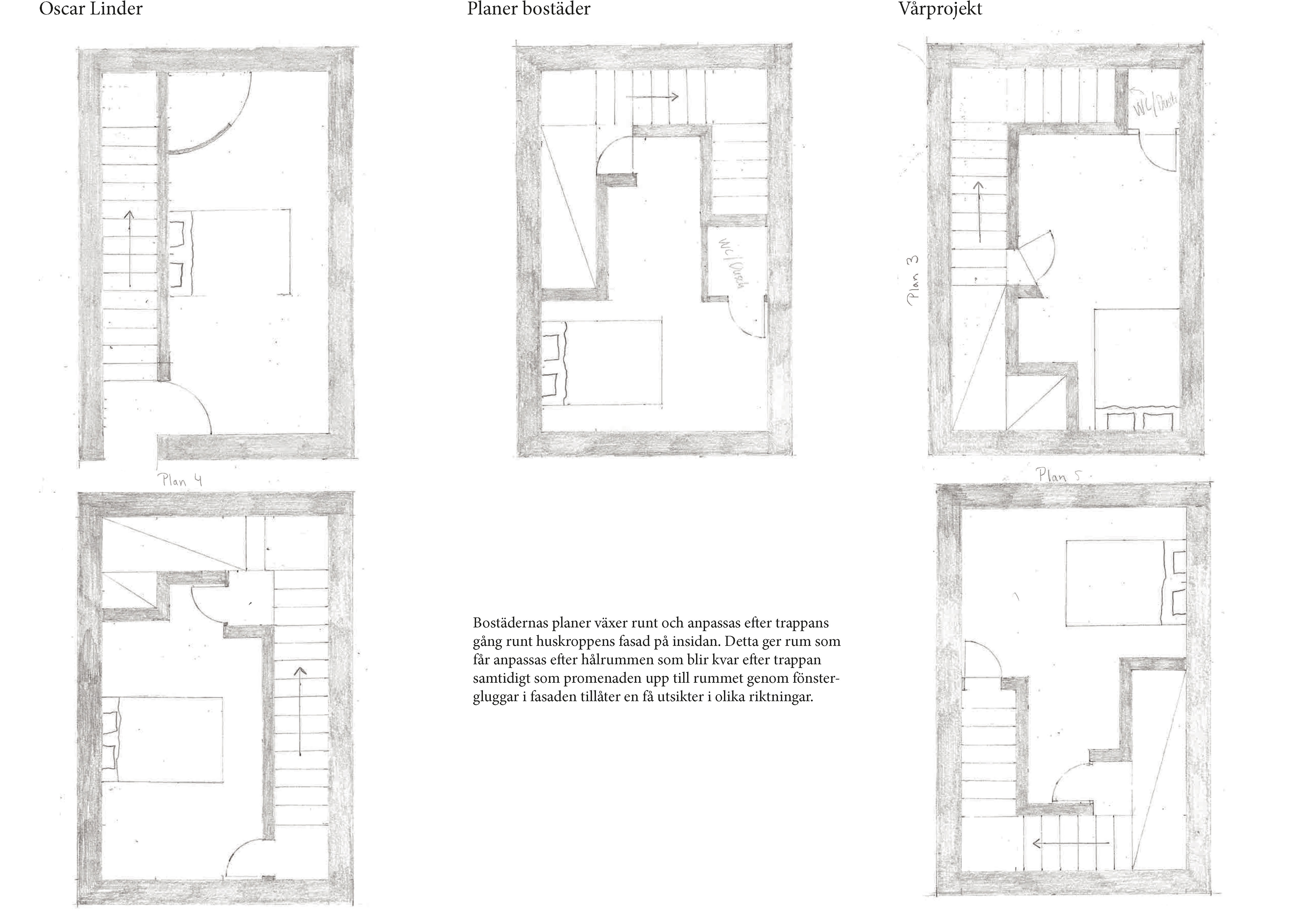
Running on Cargo